Manus Mullan
Button
Home
Manus Mullan
Studio Practice
Passive House Explained
Why use an Architect
Projects
Extensions
Single Storey Extension Lisburn
Shrewsbury Gardens, Malone Road, Belfast
Wandsworth Road, Belfast
Kirkliston Park, Belfast
Mealough Road, Carryduff
Residential
Barnett's Road - Belfast
12 No. Units, Inverary Drive, Belfast
Commercial
Bank Conversion - 2- 4 Finaghy Road, Belfast
We Are Vertigo, Ski facility
Office Development, Great Victoria Street, Belfast
New Build Homes
Clarke Home, Upper Springfield, Belfast
Downshire, Monument Road, Hillsborough
Hughes House, The Moy, Dungannon
Nutts Corner, Crumlin
Turley Dwelling, Downpatrick
Stranford Avenue, Belfast
Contact
02895 902500
info@mullan-architects.com
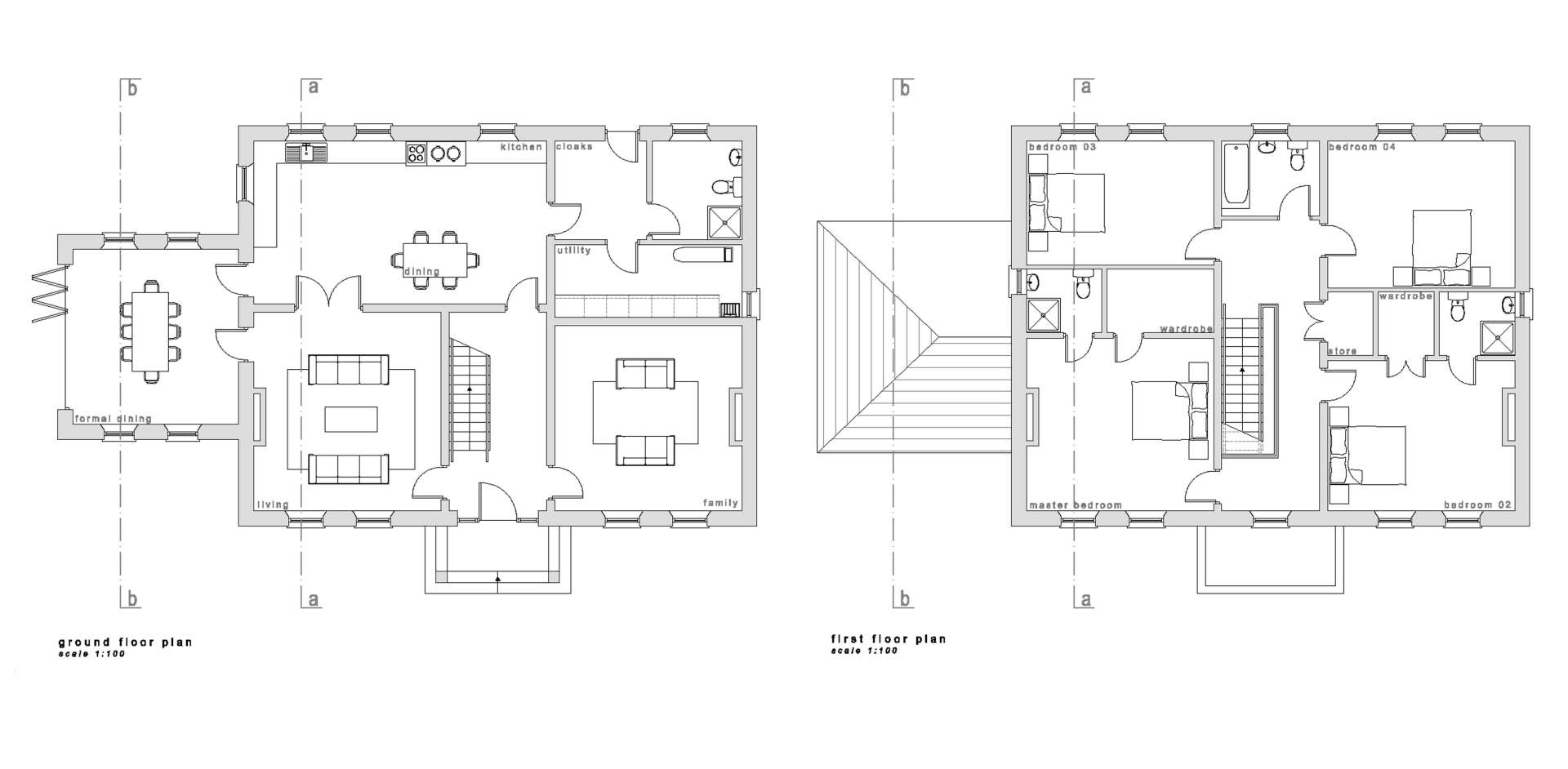
Downshire, Monument Road Hillsborough
Button
Button
Button
Button
LETS TALK
Useful links
Manus Mullan
Studio Practice
Passive House Explained
Why use an Architect
Contact
Contact info
02895 902500
info@mullan-architects.com
Innovation Factory
Forthriver Business Park
385 Springfield Rd
Belfast, BT12 7DG
Follow us
Join the Newsletter
Email:
Thank you for contacting us.
We will get back to you as soon as possible
Oops, there was an error sending your message.
Please try again later
© 2026
All Rights Reserved | Mullan Architects | Design by Media Nerds UK
Share by: